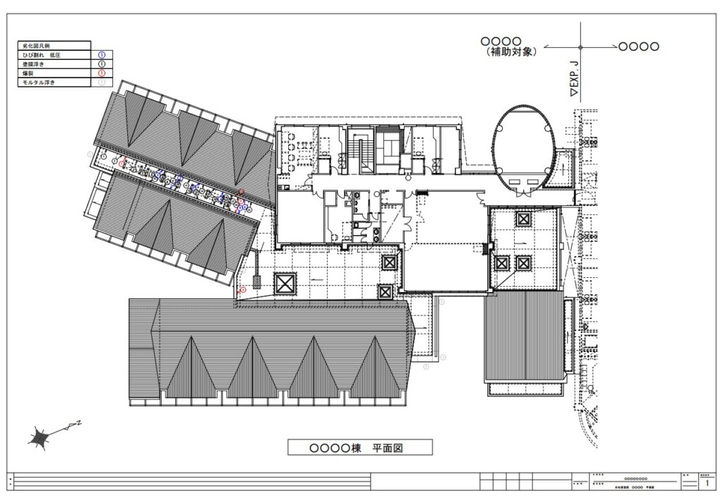
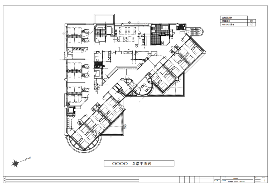
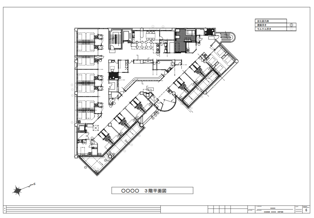
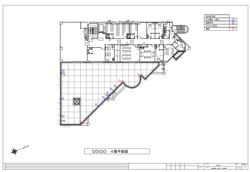
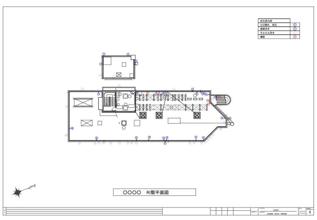
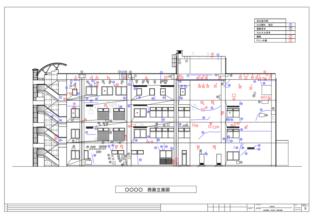
H社様 熊本県熊本市西区劣化図作成のご依頼ありがとうございます。
劣化図の他にも色々と図面作成代行をやらせていただいていますので
図面書く暇がない!図面作成の知識が無い!道路使用占用を代わりに作ってほしい等の
お悩みがありましたら是非福岡市博多区の株式会社Minatoに一度お問い合わせください。












H社様また何かありましたらご相談ください。
足場・図面等でお困りの場合はぜひ
福岡市博多区の株式会社Minatoでよろしくお願いいたします😊😊
熊本県熊本市西区 劣化図作成 | 足場工事なら福岡県の株式会社Minato|くさび式足場・足場図面・仮設工事
[受付時間] 平日 9:00~17:00
お問い合わせ